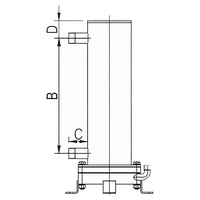
مبخر غلافي أنبوبيShell-and-Tube Evaporator
وحدات تكييف هواء أفقية لخفض درجة الحرارة داخل الكابينة الكهربائية والإلكترونيةيصنع المبخر الأنبوبي من الفولاذ المقاوم للصدأ المتين، مما يوفر مقاومة للتآكل وقوة ميكانيكية عالية. وهو مصمم خصيصاً للاستخدام مع الوسائط النظيفة أو المسببة للتآكل. يتميز المبخر ببنية مدمجة، وكفاءة عالية في نقل الحرارة، وقدرة تحمل ضغط عالية، مما يجعله واسع الاستخدام في الصناعات التي تتطلب معايير نظافة صارمة، مثل الصناعات الدوائية والغذائية والكيميائية. وباعتباره مكون رئيسي عالي الكفاءة لتبادل الحرارة في المبردات ومضخات الحرارة وأنظمة تبريد العمليات، فإنه يضمن التشغيل المستقر للمعدات على المدى الطويل.
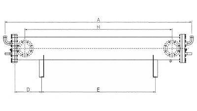
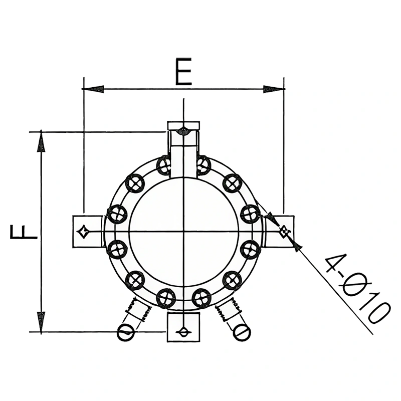
| نموذج مبادل حراري | قدرة الضاغط بالحصان | توصيلة أنبوب الماء | الأبعاد (مم) | |||||
| A | B | C | D | E | F | |||
|
|
1HP | DN15 | 550 | 370 | 40 | 50 | 193 | 193 |
|
|
2HP | DN20 | 550 | 370 | 40 | 50 | 212 | 212 |
|
|
3HP | DN25 | 550 | 370 | 40 | 50 | 235 | 235 |
|
|
4HP | DN25 | 550 | 370 | 40 | 50 | 255 | 255 |
|
|
5HP | DN25 | 600 | 420 | 40 | 50 | 285 | 285 |
|
|
6HP | DN25 | 600 | 420 | 40 | 50 | 285 | 285 |
|
|
7HP | DN25 | 600 | 420 | 40 | 50 | 305 | 305 |
|
|
8HP | DN25 | 650 | 475 | 40 | 60 | 305 | 305 |
|
|
10HP | DN40 | 650 | 455 | 50 | 70 | 330 | 330 |
|
|
12HP | DN40 | 650 | 455 | 50 | 70 | 330 | 330 |
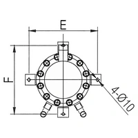
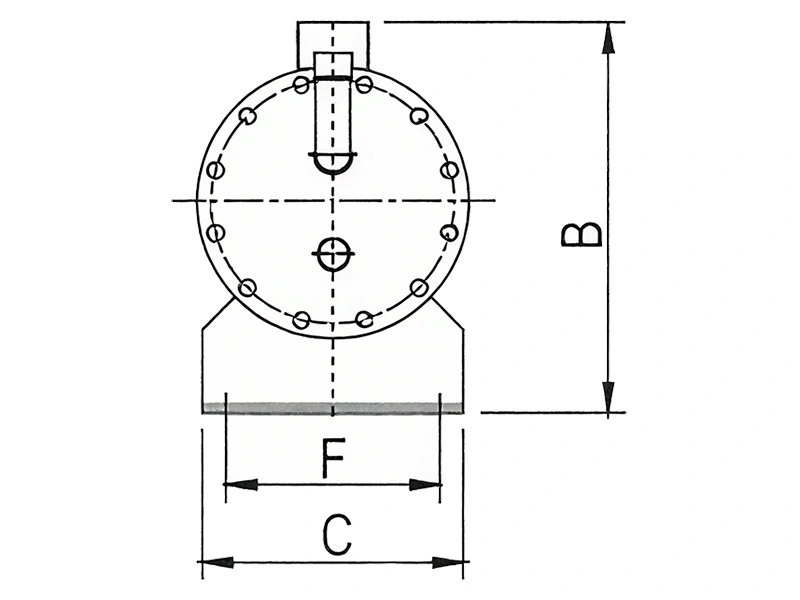
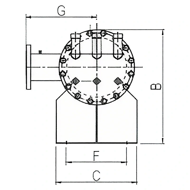
| نموذج مبادل حراري | قدرة الضاغط بالحصان | توصيلة أنبوب الماء | الأبعاد (مم) | |||||||
| A | B | C | D | E | F | G | H | |||
|
|
3HP | DN25 | 585 | 260 | 200 | 100 | 200 | 160 | 40 | 370 |
|
|
4HP | DN25 | 585 | 260 | 200 | 100 | 200 | 160 | 40 | 370 |
|
|
5HP | DN25 | 618 | 277 | 200 | 100 | 300 | 180 | 40 | 404 |
|
|
6HP | DN25 | 618 | 277 | 200 | 100 | 300 | 180 | 40 | 404 |
|
|
7HP | DN25 | 618 | 290 | 200 | 100 | 300 | 180 | 40 | 404 |
|
|
8HP | DN25 | 708 | 290 | 200 | 100 | 350 | 180 | 50 | 475 |
|
|
10HP | DN40 | 828 | 290 | 200 | 100 | 450 | 180 | 50 | 560 |
|
|
12HP | DN40 | 828 | 290 | 200 | 100 | 450 | 180 | 50 | 560 |
|
|
15HP | DN40 | 1118 | 290 | 200 | 175 | 600 | 180 | 50 | 860 |
|
|
20HP | DN50 | 1603 | 277 | 200 | 275 | 900 | 180 | 65 | 1320 |
|
|
25HP | DN50 | 1603 | 290 | 200 | 275 | 900 | 180 | 65 | 1320 |
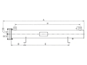
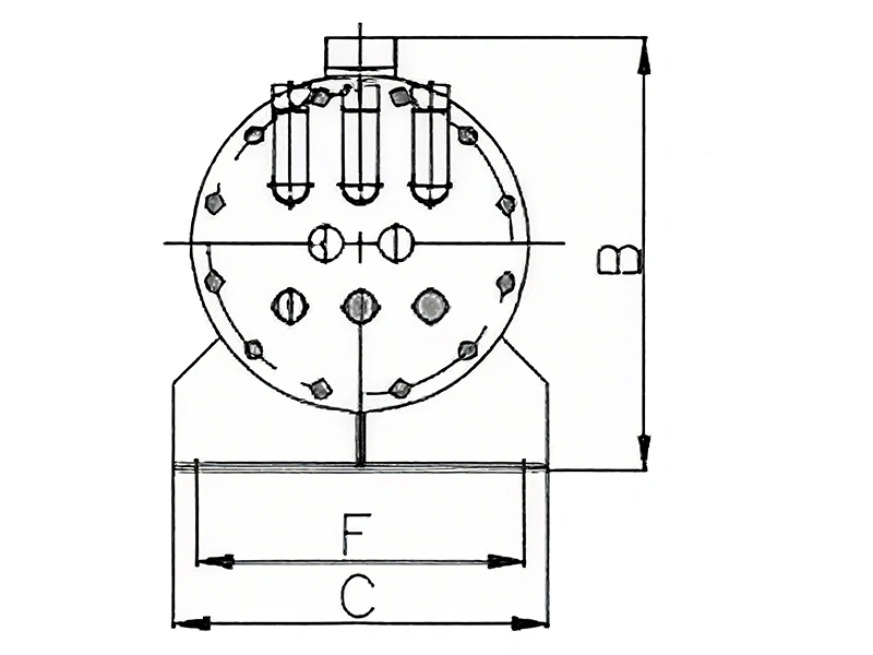
| نموذج مبادل حراري | قدرة الضاغط بالحصان | توصيلة أنبوب الماء | الأبعاد (مم) | |||||||
| A | B | C | D | E | F | G | H | |||
|
|
4HP*2 | DN25 | 708 | 290 | 200 | 100 | 350 | 160 | 50 | 475 |
|
|
5HP*2 | DN25 | 828 | 290 | 200 | 100 | 450 | 190 | 50 | 560 |
|
|
6HP*2 | DN25 | 828 | 290 | 200 | 100 | 450 | 160 | 50 | 560 |
|
|
7,5HP*2 | DN25 | 1118 | 290 | 200 | 175 | 600 | 190 | 50 | 860 |
|
|
10HP*2 | DN40 | 1603 | 277 | 200 | 275 | 900 | 180 | 65 | 1320 |
|
|
12HP*2 | DN40 | 1603 | 290 | 200 | 275 | 900 | 180 | 65 | 1320 |
|
|
15HP*2 | DN40 | 1603 | 290 | 200 | 275 | 900 | 180 | 65 | 1320 |
|
|
20HP*2 | DN50 | 1615 | 365 | 280 | 275 | 900 | 200 | 65 | 1320 |
|
|
25HP*2 | DN65 | 1615 | 436 | 320 | 275 | 900 | 280 | 65 | 1320 |
|
|
30HP*2 | DN65 | 1650 | 477 | 320 | 275 | 935 | 280 | 100 | 1335 |
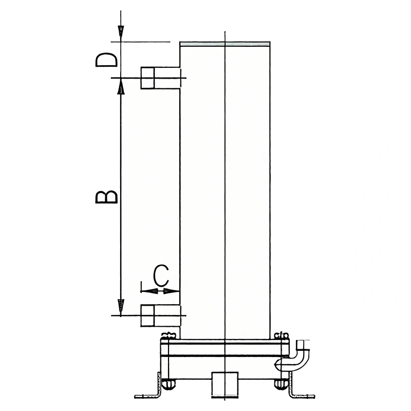
| نموذج مبادل حراري | قدرة الضاغط بالحصان | توصيلة أنبوب الماء | الأبعاد (مم) | |||||||
| A | B | C | D | E | F | G | H | |||
|
|
5HP*3 | DN40 | 1118 | 290 | 200 | 175 | 175 | 180 | 50 | 860 |
|
|
10HP*3 | DN50 | 1615 | 365 | 250 | 275 | 275 | 200 | 65 | 1320 |
|
|
12HP*3 | DN50 | 1615 | 365 | 250 | 275 | 275 | 200 | 65 | 1320 |
|
|
20HP*3 | DN65 | 1650 | 477 | 320 | 275 | 275 | 280 | 100 | 1335 |
|
|
25HP*3 | DN65 | 2315 | 477 | 320 | 275 | 275 | 280 | 100 | 1865 |
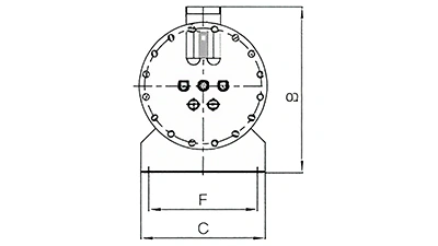
| نموذج مبادل حراري | قدرة الضاغط بالحصان | توصيلة أنبوب الماء | الأبعاد (مم) | |||||||
| A | B | C | D | E | F | G | H | |||
|
|
10HP*4 | DN50 | 1612 | 453 | 320 | 250 | 859 | 280 | 100 | 1160 |
|
|
12HP*4 | DN65 | 1612 | 468 | 320 | 250 | 859 | 280 | 100 | 1160 |
|
|
15HP*4 | DN65 | 1612 | 468 | 320 | 250 | 859 | 280 | 100 | 1160 |
|
|
20HP*4 | DN80 | 2326 | 468 | 320 | 250 | 1550 | 280 | 100 | 1870 |
|
|
25HP*4 | DN80 | 2578 | 468 | 320 | 250 | 1802 | 280 | 100 | 2122 |
|
|
30HP*4 | DN80 | 2578 | 508 | 320 | 250 | 1802 | 280 | 100 | 2122 |
| نموذج مبادل حراري | قدرة الضاغط بالحصان | توصيلة أنبوب الماء | الأبعاد (مم) | |||||||
| A | B | C | D | E | F | G | H | |||
|
|
12HP*5 | DN65 | 1612 | 482 | 320 | 250 | 859 | 280 | 100 | 1160 |
|
|
25HP*5 | DN100 | 2578 | 588 | 400 | 350 | 1802 | 350 | 350 | 2122 |
|
|
25HP*6 | DN100 | 3128 | 588 | 400 | 350 | 1802 | 350 | 350 | 2672 |
- كفاءة الطاقة
- الابتكار
- ميزات السلامة
- التصنيع الدقيق
-
25% تحسين كفاءة التبادل الحراري بنسبة 25% تقريباًأنابيب نحاسية ملولبة داخلياً (سن داخلي) -
20% تحسين كفاءة التبادل الحراري بنسبة 20% تقريباًزعانف على شكل موجة -
6% يقلل استهلاك الطاقة الإجمالي بنسبة 6% تقريباًصمام تمدد إلكتروني متحكم فيه بنظام PID -
20% تحسين تجانس التوزيع بنسبة 20% تقريباًنظام توزيع محسن للمبرد -
10% يعزز دوران الهواء بنسبة 10% تقريباًتصميم مسار تدفق الهواء الأمثل -
20% يقلل استهلاك طاقة المروحة بنسبة 20% تقريباًالتحكم الآلي في حجم الهواء
-
مبخر من الفولاذ المقاوم للصدأ -
مكثف على شكل حرف V -
خزان مياه أسطواني -
مروحة منخفضة الضوضاء -
وحدة تحكم بشاشة لمس -
نظام تحكم متقدم
-
حماية من ارتفاع درجة الحرارة -
الحماية من التيار -
التشخيص الذاتي -
نظام ذكي مضاد للتجمد -
إنذار تدفق المياه -
إنذار مستوى الماء -
إنذار الضغط -
تشغيل/إيقاف المؤقت
-
تشكيل الصفائح المعدنية بدقة -
حلقات توجيه التدفق المختومة -
نظام الثني الروبوتي (Bystronic، سويسرا) -
تقنية اللحام بالليزر -
قطع مواد العزل آلياً -
لحام الوصلات الآلي
بفضل خبرة تزيد عن 20 عام في مجال التبريد الصناعي، تقوم شركة KANSA بتصميم وتصنيع مجموعة متنوعة من المبردات الصناعية (الشيلرات) ومعدات التحكم في درجة حرارة العمليات داخلياً لضمان جودة متسقة، وتشغيل موثوق، وثبات استثنائي في درجة الحرارة بدقة ±0.05 درجة مئوية. تحمل الشركة شهادات CE وISO9001-2016 وISO45001 وغيرها من الشهادات الدولية، وتخدم أكثر من 70,000 عميل حول العالم.













